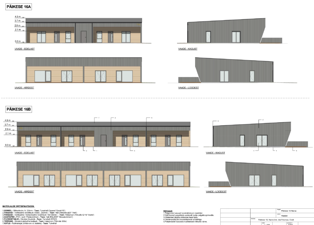
Эскизы рядных домов, которые планируется построить на участке Päikese tn 16
Департамент архитектуры и городского планирования Нарвской городской управы опубликовал проект условий на проектирование строительства рядного дома и жилого дома с двумя квартирами по адресу Päikese tn 16.
В данном документе условиями на проектирование уточняется детальная планировка, утверждённая решением Нарвского городского собрания еще 30 июня 2010 года.
Согласно информации департамента, на указанном участке планируется построить один одноэтажный дом с двумя квартирами с площадью застройки примерно 270,9 м², и один одноэтажный рядный дом на четыре квартиры (площадь застройки примерно 404,1 м²).
Участок Päikese tn 16 находится по соседству с нарвским садовым товариществом
«Мебельщик».
С полным текстом проекта условий на проектирование можно ознакомиться на домашней страничке департамента архитектуры и городского планирования Нарвской городской управы www.narvaplan.ee, на домашней страничке города Нарвы или в фойе здания по адресу Peetri plats 5, предварительно позвонив по телефону 58373580.
По информации Департамента архитектуры и городского планирования Нарвской горуправы, открытое производство продлится до 8 ноября этого года.









